Project Overview
📝 Project Description
🏗️ Project Details
Tata Aveza - Codename Infinium (Tower D) is Enviable lifestyle with Inimitable Amenities in Prime Location of Mumbai Situated in the prime location near Mulund East Police Station, Infinium by Tata Housing is easy accessible to prominent nook and cranny of city making it is an ultimate choice for aficionados of lavish lifestyle. Moreover, spread over acres 8 acres of lush mangroves in Mulund, Tata Codename Infinium will offer picturesque views of nature and city skyline.
Aveza Codename (Infinium Tower D) is a 46 storied Under Construction Project and the location is MHADA, New PMGP Co-Operative Housing Society Ltd. Navghar, Mulund East and is developed by Tata Housing. Aveza Codename Infinium Tower was launched in Oct 2015 and the possession of the same is likely to be in Mar 2021.
Aveza Codename Infinium (Tower D) is RERA approved has the Registration Number bearing P51900007740.
Aveza Codename Infinium Tower is tagged as Self Use / Lifestyle Property / RERA Approved.
Aveza Codename Infinium Tower D provides 2BHK, 2.5BHK and 3BHK homes. Aveza Codename Infinium Tower has good reviews and the ratings of this project are approximately 4.5 out of 5.
Tata Housing also has other under construction and
ready possession and sold out projects like Tata Amantra, Aveza Gateway
Tower, Aveza Infinium Signature, Tata Serein, Tata Neptune Eleve, Aveza
Codename Infinium Tower, Tata Avaha, New Haven, Aveza Vivati Tower ,
Glen Dale.
The property prices in Mulund East are in the range of 11000 to 13000 for Outright for ready and under construction projects.
Tata Housing currently has 2 Ready Possession, 7 Under Construction projects.
Download the brochure and video of Aveza Codename Infinium (Tower D) and you can
see the latest digital pictures, Floor Plans, Location Plans & Rate
History on our website.
The Bookings for the Under Construction
project Aveza Codename Infinium Tower are open and we can set up a Site
Visit any time at your Convenience.
Aveza Codename Infinium Tower
is approved by most of the Banks and for more details on the approved
bank list, please connect with us.
📋 Project Remarks
⭐ Project Ratings
🏢 Tata Housing
Developer: Tata Housing
🏗️ Other Projects by Tata Housing
📸 Project Gallery (26 images)
🏊 Amenities & Features (15 amenities)
📐 Floor Plans & Site Plans
🔒 Share your details to receive floor plans directly on WhatsApp.
🎥 Project Videos
Other Projects in Mulund East
📐 Approximate Pricing — Area & Bedrooms
| Type | Carpet Area | Indicative Price | Approx. ₹/sqft |
|---|---|---|---|
| 2 BHK | 628 sq.ft. | 1.28 Cr All In | — |
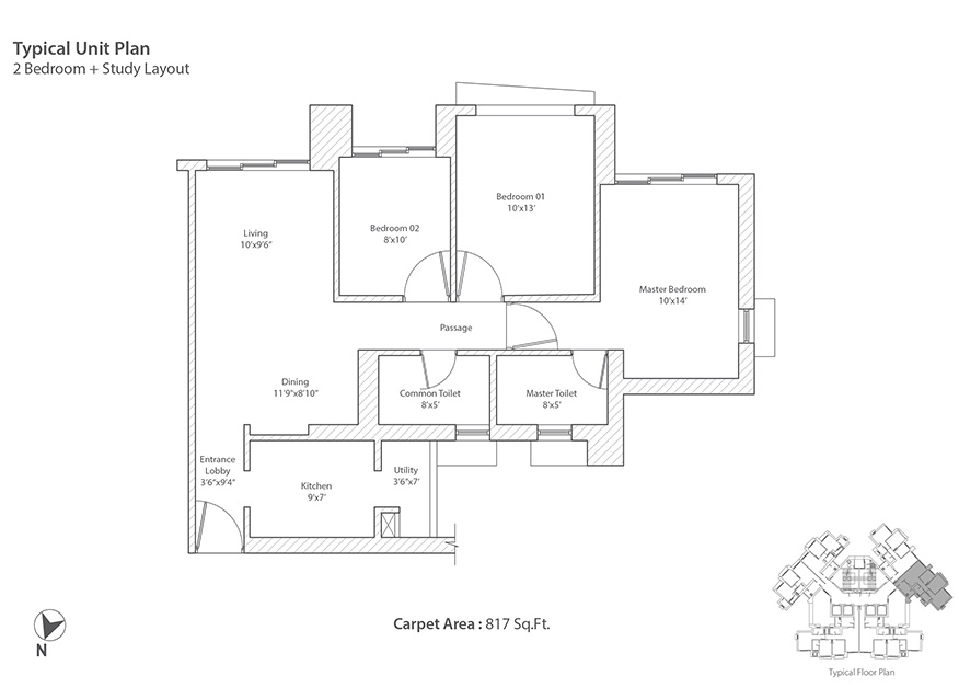
| 2 BHK | 817 sq.ft. | 1.65 Cr All In | — |
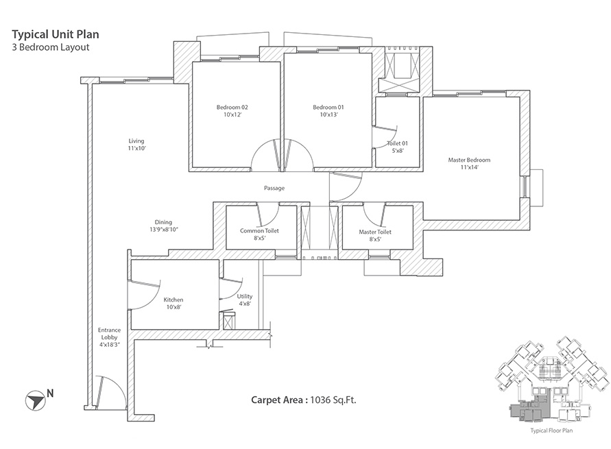
| 3 BHK | 1036 sq.ft. | 2.09 Cr All In | — |
🧮 Financial Tools
💰 EMI Calculator
🔄 Rent vs Buy
Should you rent or buy in Mulund East? Compare monthly costs.
❓ Frequently Asked Questions
What is the RERA number for Aveza Codename Infinium Tower?
The RERA registration number for Aveza Codename Infinium Tower is P51900007740. You can verify this on the MahaRERA website.
What configurations are available at Aveza Codename Infinium Tower?
Aveza Codename Infinium Tower offers 2 BHK, 3 BHK configurations.
What is the price range at Aveza Codename Infinium Tower?
Prices at Aveza Codename Infinium Tower start from approximately 1.28 Cr All In (indicative only). Contact the developer for final pricing.
Who is the developer of Aveza Codename Infinium Tower?
Aveza Codename Infinium Tower is developed by Tata Housing.
What amenities are available at Aveza Codename Infinium Tower?
Aveza Codename Infinium Tower offers amenities including Club House, Grand entrance lobby, Gymnasium, Imported Sanitary Fittings, Intercom/CCTV, POP finished walls, Granite Platform, and more.
Where is Aveza Codename Infinium Tower located?
Aveza Codename Infinium Tower is located in Mulund East, Mumbai.
📋 MahaRERA Project Details
Tata Housing Development Company Limited